PROPERTY RECORD CARD, Lot 1 | PROPERTY APPRAISER MAP, Lot 1
GOOGLE MAP LINK, lot 1 | ZILLOW MAP LINK, lot 1
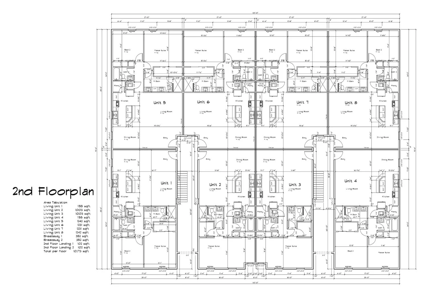
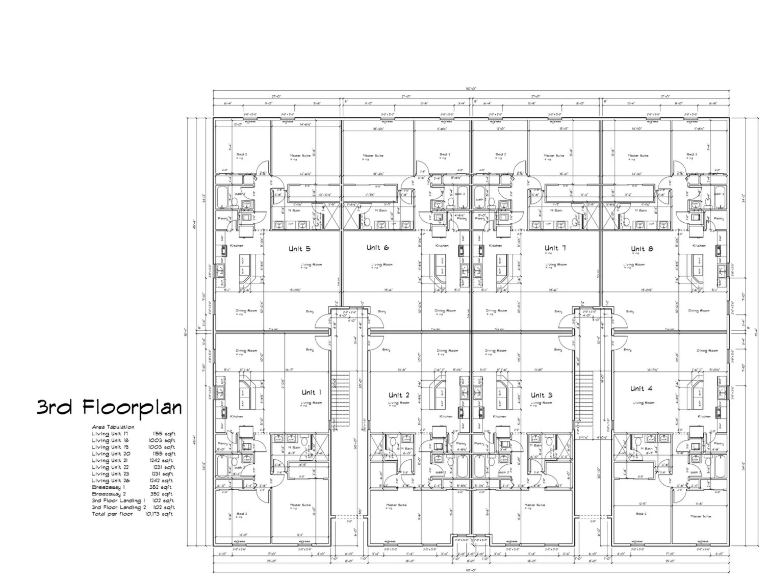
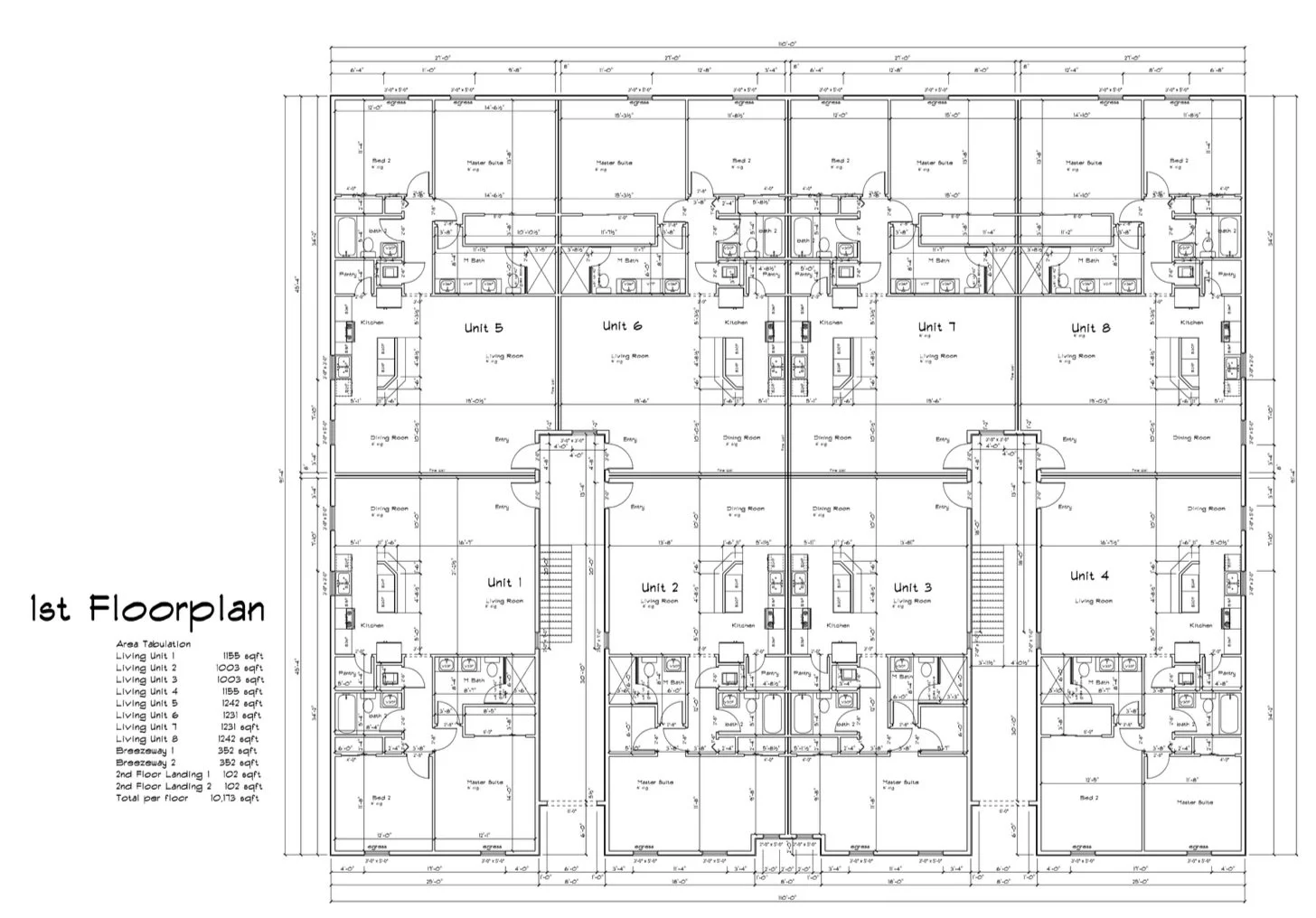
48 UNITS CAN BE DEVELOPED FOR INDIVIDUAL SALE OR A MULTI FAMILY COMMUNITY
CITY OF PALM BAY, FLORIDA
Palm Bay is perfectly located on Florida's east central coast, midway between Jacksonville and Miami. Off of I-95 take exits 173 and 176. Palm Bay is close to Melbourne and Orlando International Airports and Port Canaveral. Housing styles include a wide variety of single family homes, apartments, condominiums, town homes and gated subdivisions. Many quality of life choices including employment opportunities from entrepreneurial family owned enterprises through a growing base of mid and large size technology and manufacturing companies. Education opportunities include 18 public and private K through Grade 12 schools. Eastern Florida State College's four campuses are spread across Brevard County's more than 70-mile-long expanse on Florida's east coast, offering convenient access to higher education for all. Palm Bay Campus is situated on attractive Lake Titan in the fastest growing and most culturally diverse community in Brevard County. Recreational activities include 29 city parks which include paintball and skateboarding, an aquatic center, a 200 acre regional park, two public / private golf courses, Turkey Creek Sanctuary, and nearby are the beaches!
Subject Property Location 2071, 2081, 2091, 1801, 00 Agora Circle SE Palm Bay, Florida 32909 Is:
1 mile from Health First's Palm Bay Hospital
1.2 miles to Palm Bay Medical Office Center
1.7 miles to Publix Supermarket, Home Depot, Walmart & Lowes Home Improvement
Within 2 miles you have national tenants such as; Chick-fil-a, Sonic, Waffle House, Mcdonalds, Wendys, Texas Roadhouse, Dunkin Donuts, Sonny BBQ
2.2 miles is the Eastern Florida State College - AA Rated, with 15,352 active students enrolled in undergraduate degree programs
3.8 miles to Malabar Beach / Indian River and the inlet waterway
12 miles to cross the Indian River to Indialantic Beach on the Atlantic Ocean
Engineered Site Plan For Development
Fully Engineered Civil & Architectural Drawings Are Completed
