About Palm Bay, Florida
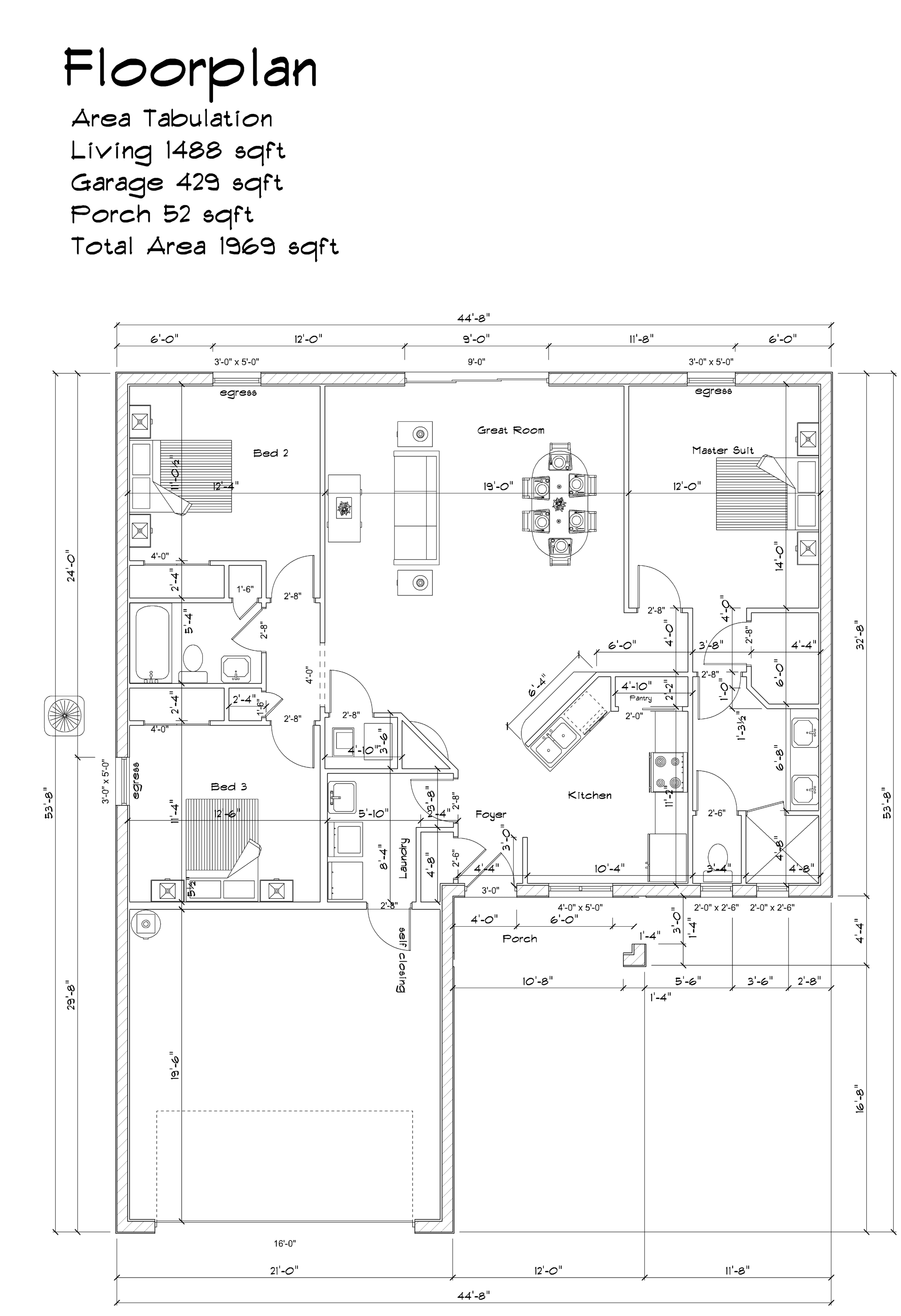
Total project area is 0.23 acres +/-, 10,018.8 sf +/-
Design District - Urban High
Future Land Use Category - R-1
Residential - 1 Single Family Home
Building Lot Size - 80’ x 125’
Central Water and Sewer from City of Palm Bay
15’ Perimeter Landscape Buffer as Required
